109年度
公立高級中等以下學校老舊廁所改善計畫
|
|
|
所屬縣市 |
臺南市 |
|
學校名稱 |
佳里國民中學 |
|
學生人數 |
1096人 |
|
學生班級數 |
42班 |
|
廁所整修棟名 |
活動中心 |
|
廁所整修屋齡 |
29年 |
|
廁所所屬建築是否有使用執照 |
是 |
|
廁所所屬建築是否已經校舍耐震補強改善 |
是 |
|
廁所所屬建築是否符合無障礙設施設計規範 |
是 |
|
廁所整修間數 (有牆壁區隔視為一間) |
2間 |
|
序號 |
樓/男女廁 |
整修面積 |
各間改善廁所距離50m內使用人數 |
蹲式馬通廁間數量 |
坐式馬桶廁間數量 |
整修前馬桶是否可丟衛生紙 |
整修後馬桶是否可丟衛生紙 |
|
|
1 |
1樓男廁 |
24㎡ |
男 500人 |
女 人 |
1 |
1 |
不可以 |
可以 |
|
2 |
1樓女廁 |
42㎡ |
男 人 |
女 500人 |
3 |
1 |
不可以 |
可以 |

|
總計核定-規劃設計金額 |
補助金額 |
67,922 |
|
自籌款金額 |
9,263 |
|
|
總計核定-工程金額 |
|
974,815 |
|
其他自籌金額 |
|
0 |
|
發包費用金額 |
|
943,108 |
|
標餘款金額 |
|
6,848 |
|
聯繫方式 |
學校單位 |
業務承辦人 |
徐佑璋 |
|
職稱 |
總務主任 |
||
|
聯絡電話 |
06-7222244 |
||
|
E-MAIL |
Adoph487@tn.edu.tw |
||
|
規劃設計團隊 |
規劃設計團隊名稱 |
解構聯合建築師事務所 |
|
|
聯絡人 |
沈奎良 |
||
|
聯絡電話 |
06-2997332 |
||
|
E-MAIL |
arch.pop@msa.hinet.net |
|
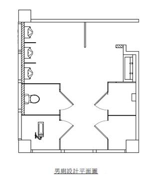
一、廁所整修現況平面圖 |
|
|
二、廁所整修後平面圖 |
|
|
三、廁所整修後剖立面圖 |
|
女廁東向剖面圖
男廁西面剖面圖 |
一、 改善項目:廁所地坪面有高低差
|
改善前(現況說明) |
改善中(整修情況) |
改善後(完成說明) |
|
|
|
|
|
說明:廁所地坪面有高低差 |
說明:打除原本地板重埋馬桶 |
說明:完成後馬桶邊緣與地磚等高 |
二、 改善項目:磁磚剝落破損
|
改善前(現況說明) |
改善中(整修情況) |
改善後(完成說明) |
|
|
|
|
|
說明:原本磁磚破損掉落 |
說明:敲除所有磁磚 |
說明:利用拋光石英磚和油漆改善牆面 |
三、 改善項目:洗手台老舊漏水
|
改善前(現況說明) |
改善中(整修情況) |
改善後(完成說明) |
|
|
|
|
|
說明:使用舊式家用壁掛式洗手台 |
說明:重新施作 |
說明:採用新式人造石一體式洗手台,搭配省水水龍頭 |
四、 改善項目:拆除天花板改善採光及通風
|
改善前(現況說明) |
改善中(整修情況) |
改善後(完成說明) |
|
|
|
|
|
說明:天花板老舊又有壓迫感 |
說明:拆除老舊天花板 |
說明:抹平天花板營造挑高的感覺 |
|
改善前(現況說明) |
改善中(整修情況) |
改善後(完成說明) |
|
|
|
|
|
說明:原老舊廁所除沖水設施外,沒有任何設備 |
說明:牆面重新施作一併製作弱電管路 |
說明:每廁間安裝有緊急求救鈴 |
六、 改善項目:改善舊式水泥牆隔間
|
改善前(現況說明) |
改善中(整修情況) |
改善後(完成說明) |
|
說明:原本使用磚塊及水泥的隔間牆,配上大鐵門 |
說明:拆除鐵門並敲除隔間 |
說明:使用捣擺,配上溫馨的顏色,讓廁所看來不再沈重。 |
|
改善前(現況說明) |
改善中(整修情況) |
改善後(完成說明) |
|
說明:地板原為10*10的地磚材質,地板排水經過多次整修,已為不同色系的磁。 |
說明:打除原壁面及重新配管 |
說明:改用20*20防滑地磚,不但看起來更乾淨,地板排水重做,更有一體的感覺。 |
|
改善前(現況說明) |
改善中(整修情況) |
改善後(完成說明) |
|
說明:原廁間使用無省水功能的水箱式沖水設施 |
說明:重配新設的管路 |
說明:改用踏式省水沖水設備 |
|
本案原本於執行時因經費不足經歷兩次流標,在教育局介入指導,變更設計材質、減少磁磚面積,終於順利發包出去。 在變更設計材質的部份,最主要改變了建築師喜歡用於學校廁所的馬賽克壁磚,改為面積較大、比較便宜的大理石紋拋光石英磚,反而有種百貨公司廁所的高質感。 並把原本的天花板拆除,抹平原本粗糙天花板,營造出一個挑高的空間感,改善了許多廁所常有的壓迫感,也因如此,整體光線看來更加明亮。 原本的廁所使用磚造隔間,牆壁厚實,早期設計使用鐵板門,後來改用木門,但仍是感覺笨重,敲除重做後,改用捣擺,配上較為活潑綠色及粉紅色門板,配上對比重的灰色的壁板,更突顯活潑且輕鬆的氛圍。 洗手台原本為一般家用的普通洗手台,不但老舊,難以清洗,而且僅靠兩隻壁釘懸吊於牆面上,感覺安全性不足。這次整修改用白色人造石的材質,看來更加大方有現代感,配上前方大面的鏡子,更有質感,讓上廁所不會有一種身在不乾淨環境的感覺。另外改用自動感應水龍頭,達到省水的效果。 原馬桶採用水箱式沖水系統,此次改造將其改為腳踏式省水沖水設施,不但省水,還讓廁間看起來更簡潔。 活動中心因為建築時間為民國83年,以當時的建築法規及使用習慣,廁所設計僅以能夠使用為主,因此當時並未設計有緊急求救設備,此次改善,加入了電線管路,並安裝一套緊急求救鈴,大大改善了如廁時的安全性。 |
|
|
|
文字說明:採用大理石紋拋光石英磚,整修後的廁所猶如百貨公司廁所般風格的明亮且高質感。 |
|
|
文字說明:原本的天花板拆除,抹平原本粗糙天花板,營造出一個挑高的空間感,改善了許多廁所常有的壓迫感,也因如此,整體光線看來更加明亮。 |
|
|
文字說明:原本的廁所使用磚造隔間,牆壁厚實,敲除重做改用捣擺,配上較為活潑綠色及粉紅色門板,配上對比重的灰色的壁板,更突顯活潑且輕鬆的氛圍。 |
|
|
文字說明:洗手台原本為一般家用的普通洗手台,不但老舊,難以清洗,而且僅靠兩隻壁釘懸吊於牆面上,感覺安全性不足。這次整修改用白色人造石的材質,看來更加大方有現代感,配上前方大面的鏡子,更有質感,讓上廁所不會有一種身在不乾淨環境的感覺。另外改用自動感應水龍頭,達到省水的效果。 |
|
|
文字說明:原馬桶採用水箱式沖水系統,此次改造將其改為腳踏式省水沖水設施,不但省水,還讓廁間看起來更簡潔。 |
|
|
文字說明:此次加入了電線管路,並安裝一套緊急求救鈴,大大改善了如廁時的安全性。 |